
Taylor Farrell
Hotel Cellai
Hotel Cellai
Italian Botique Hotel
Completion Date: December 2014
Project Type: Hospitality


The concept for this Florence Hotel bedroom and lobby is derived from the city and its fashion influence. So in this space the goal was to give visitors a unique and luxury life syle that is unique to Italy.
-
Inspired by designers Anne Fontaine and Carla Scarpa
-
For "Genius Loci: Florence and Galileo" Confrence
-
Because it is a Boutique Hotel, every room is designed differently.
-
The Terrance Resturant is attached to the hotel and is a great addition to the hotel for guests.
![]() Hotel Bedroom | ![]() Hotel Bedroom | ![]() Hotel Bedroom Bathroom |
|---|---|---|
![]() Bedroom Floor Plan | ![]() Bedroom Section | ![]() Hotel Lobby |
![]() Hotel Entrance | ![]() Hotel Seating Area | ![]() Hotel Lounge |
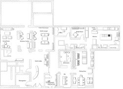
![]() Full 1st Floor Floor Plan | ![]() Section | ![]() Section |
![]() Section |
The Terrace Resturant is attached and acts as apart of the Hotel.
The Terrace Restuant is a vegan resturant that is designed with the idea of a terrace, using natuarl elements in the space and incorprating plants into the design. The resturant supports a bar, kitchen and two large dining areas.
![]() Hotel Restaurant Entry | ![]() Bar | ![]() Hallway |
|---|---|---|
![]() Dining Area | ![]() Green Wall Detail | ![]() Kitchen |
![]() Kitchen | ![]() logo inverted.jpg | ![]() taylor axon.JPG |





















